Vous envisagez d’investir dans la pierre autour de Saint-Omer, Longuenesse, Arques ou dans l’Audomarois ?
Bonne nouvelle : la construction neuve reste aujourd’hui l’un des placements les plus sécurisés pour préparer des revenus locatifs durables.
Mais attention. Un investissement locatif réussi ne repose pas seulement sur le prix au m². Il repose sur une stratégie globale : qualité du bien, fiscalité, gestion du risque locatif et maîtrise des coûts sur le long terme.
On vous explique pourquoi la construction neuve séduit de plus en plus d’investisseurs locaux, comment structurer votre projet intelligemment et combien cela coûte réellement.
Sommaire
Pourquoi la construction neuve attire les investisseurs dans l’Audomarois

Le marché locatif autour de Saint-Omer reste dynamique. La demande existe, notamment pour les :
- Jeunes actifs
- Couples primo-accédant en transition
- Familles en mobilité professionnelle
- Seniors qui cherchent du confort récent
Construire du neuf permet de répondre exactement à cette demande.
Contrairement à l’ancien, vous ne subissez pas le bien. Vous le concevez pour louer efficacement.
Les grands avantages d’un investissement locatif en maison neuve

-
Zéro mauvaise surprise structurelle
Dans l’ancien, les investisseurs découvrent souvent :
- Toiture à refaire
- Isolation insuffisante
- Humidité
- Réseaux vieillissants
Avec une construction neuve RE2020, vous partez sur une base saine.
Résultat : moins d’imprévus, moins de stress, moins de travaux lourds les premières années.
-
Une performance énergétique qui séduit les locataires
Aujourd’hui, les locataires regardent de très près :
- La consommation de chauffage
- Le confort d’été
- Le classement énergétique
Un logement neuf coche toutes les cases.
Conséquence directe :
- Mise en location plus rapide
- Vacance locative réduite
- Meilleure valorisation du loyer
-
Une fiscalité plus douce au démarrage
Beaucoup d’investisseurs locaux l’ignorent.
Une construction neuve peut bénéficier :
- D’une exonération de taxe foncière pendant 2 ans
- De frais d’acquisition optimisés
- D’une meilleure lisibilité des charges
C’est un vrai levier pour améliorer la rentabilité au début du projet.
-
La possibilité de concevoir un bien “spécial location”
C’est là que le neuf devient très puissant.
Vous pouvez optimiser :
- La surface utile
- Le nombre de chambres
- Les espaces de stationnement
- La configuration (plain-pied, duplex, double logement…)
Contrairement à l’ancien, vous ne subissez pas un plan figé.
Faut-il acheter en nom propre ou créer une SCI ?

C’est LA question qui revient souvent et vous avez raison de vous la poser.
Le nom propre suffit souvent
Pour un premier investissement locatif :
- Gestion simple
- Fiscalité lisible
- Moins de frais de structure
Beaucoup d’investisseurs autour de Saint-Omer démarrent ainsi.
La SCI devient intéressante si vous :
- Investissez à plusieurs
- Préparez une transmission
- Voulez organiser le patrimoine familial
La SCI à l’IR reste la plus courante.
⚠️ La SCI à l’IS peut améliorer la trésorerie mais complexifie la revente. Elle doit être étudiée au cas par cas.
Pourquoi le “clos-couvert” séduit les investisseurs

Le clos-couvert est une stratégie intelligente pour piloter son budget.
Il permet de :
- Sécuriser le gros œuvre
- Phaser le financement
- Adapter les finitions selon la stratégie locative
- Garder de la souplesse de trésorerie
Dans un marché prudent comme celui de l’Audomarois, c’est souvent un excellent compromis.
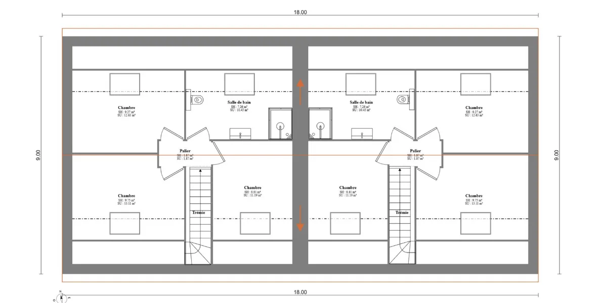
Pourquoi 2 maisons, c’est souvent mieux pour un investisseur

-
Vous divisez le risque locatif
Avec une seule maison, si elle est vide → 0 € de loyer
Avec deux logements :
un seul loué → revenus qui continuent
deux loués → rendement optimisé
Dans l’Audomarois, où le marché est stable mais prudent, cette sécurisation rassure énormément les investisseurs.
-
Une rentabilité souvent meilleure
Construire deux maisons sur une même opération permet souvent :
- D’optimiser le prix du gros œuvre
- De mutualiser certains frais
- D’amortir plus vite le coût du terrain (quand il est inclus)
Résultat : le rendement au m² est généralement plus intéressant qu’un projet mono-logement.
-
Une stratégie patrimoniale plus souple
Avec deux maisons, l’investisseur garde des options :
- Revendre un lot et conserver l’autre
- Loger un enfant plus tard
- Passer un logement en meublé
- Adapter selon le marché
-
Une demande locative bien adaptée autour de Saint-Omer
Sur le secteur Audomarois, la demande est forte pour :
- T3 / petites maisons
- Logements récents
- Biens avec stationnement
Un projet double logement bien pensé coche toutes les cases.
Alors… combien coûte une construction clos-couvert autour de Saint-Omer ?

Entrons maintenant dans le concret.
Sur la base d’un projet type conforme RE2020 (terrain non inclus) :
Budget au stade hors d’eau / hors d’air (clos-couvert)
Environ 120 000 € à 125 000 €
À ce stade :
- Menuiseries posées
- Maison totalement fermée
- Prête pour le second œuvre
C’est généralement le niveau privilégié par les investisseurs.
Bien sûr, chaque projet est unique :
- Surface
- Configuration
- Niveau de finition
- Contraintes du terrain
Une étude personnalisée reste indispensable.
Le bon moment pour investir autour de Saint-Omer

Le marché local reste porteur, mais les investisseurs qui réussissent ont un point commun :
Ils anticipent et sécurisent le bon produit, le bon montage et surtout le bon niveau de finition.
Chez Les Demeures de l’Aa, nous accompagnons les investisseurs de l’Audomarois pour concevoir des projets réellement pensés pour la location.
FAQ : Projet locatif
Tout dépend de votre stratégie.
Micro-foncier
• Abattement forfaitaire de 30 %
• Très simple à gérer
• Intéressant si vous avez peu de charges
Régime réel
• Déduction des charges réelles
• Intérêts d’emprunt déductibles
• Assurance, taxe foncière, frais de gestion…
Pour une construction neuve financée à crédit, le régime réel est souvent plus avantageux les premières années.
Mais chaque situation est différente : un calcul personnalisé reste indispensable.
Oui, dans la majorité des communes.
Une construction neuve peut bénéficier d’une exonération de taxe foncière pendant 2 ans après l’achèvement du logement.
Conditions principales :
• Déclarer la fin de travaux dans les 90 jours
• Logement réellement neuf
• Commune n’ayant pas supprimé l’exonération
⚠️ Certaines communes de l’Audomarois peuvent moduler cette exonération. Vérifiez toujours en mairie. C’est un vrai plus pour la rentabilité locative au démarrage.
Pas forcément et c’est une erreur fréquente de le croire.
Le nom propre suffit si vous :
• Investissez seul ou en couple
• Faites de la location nue classique
• Cherchez la simplicité
La SCI devient pertinente si vous :
• Investissez à plusieurs
• Préparez une transmission
• Voulez structurer le patrimoine
⚠️ La SCI à l’IS
Elle peut améliorer la trésorerie grâce à l’amortissement, mais elle complique la fiscalité à la revente. Elle doit être étudiée avec un expert-comptable.
Pour beaucoup d’investisseurs locaux, le nom propre ou la SCI à l’IR restent les solutions les plus adaptées.
Oui, dans la grande majorité des projets d’investissement, le clos couvert comprend les menuiseries extérieures.
Concrètement, cela signifie que la maison est :
• protégée des intempéries
• entièrement fermée
• sécurisée et prête pour le second œuvre
Chez Les Demeures de l’Aa, tout est clarifié noir sur blanc dans le contrat CCMI.
Vous savez précisément ce qui est inclus à chaque étape de la construction.
La différence est simple mais essentielle :
Hors d’eau
• Toiture terminée
• Maison protégée de la pluie
• Menuiseries pas forcément posées
Le bâti est étanche à l’eau.
Hors d’air
• Fenêtres et portes installées
• Maison totalement fermée
Le volume est sécurisé et prêt pour le second œuvre.
Pour un investisseur, le stade hors d’air est généralement le plus pertinent.
Investir dans une construction neuve autour de Saint-Omer n’est pas réservé aux gros patrimoines.
Avec une stratégie claire, un montage adapté et un clos-couvert bien maîtrisé, il est possible de construire un projet locatif solide, durable et rentable.
Le plus important reste de concevoir un bien qui se louera facilement.






